Beschrijving

Slaghekstraat 60C03, 3074 EM Rotterdam
 
110 m2 / 3 slaapkamers en 2 badkamers
 
NIET GESCHIKT VOOR STUDENTEN / GEEN KAMERBEWONING

Modern en licht dubbel-laags appartement (110 m²) met 3 slaapkamers en 2 badkamers in Rotterdam-Zuid
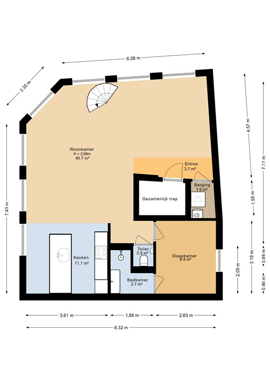
Op een levendige locatie in Rotterdam-Zuid, op de hoek van de Beijerlandselaan en de Slaghekstraat, bieden wij dit ruime en moderne dubbel-laags appartement aan, gelegen op de 3e en 4e (top)etage. De woning beschikt over circa 110 m² woonoppervlakte, drie slaapkamers en twee badkamers – ideaal voor een stel of gezin.
Indeling
Bij binnenkomst stap je direct de ruime en lichte woonkamer binnen. Dankzij de grote raampartijen geniet de woonkamer van veel natuurlijk licht en een vrij uitzicht over de Beijerlandselaan.
De moderne open keuken is voorzien van een stijlvol kookeiland en diverse inbouwapparatuur, waaronder een vaatwasser en combi magnetron/oven.
Op deze woonlaag (3e etage) bevinden zich tevens de eerste slaapkamer en de eerste badkamer, voorzien van een wastafel en douche.
Middels een interne wenteltrap bereik je de 4e verdieping. Hier bevinden zich twee goed bemeten slaapkamers en de tweede badkamer, welke is uitgerust met een aparte douche, toilet en ligbad.
Daarnaast is er een separaat toilet en een praktische CV-/wasruimte met aansluitingen voor wasmachine en droger.
Afwerking
Het appartement is hoogwaardig afgewerkt en voorzien van mooie houten vloeren, wat zorgt voor een warme en moderne uitstraling.
Bijzonderheden
Woonoppervlakte: ca. 110 m²
Dubbel-laags appartement (3e en 4e etage)
3 slaapkamers (waarvan 1 op de 3e etage)
2 badkamers (waarvan 1 op de 3e etage)
Moderne keuken met kookeiland en inbouwapparatuur
Inwendige wenteltrap
Externe berging in de kelder
Energielabel A
Gelegen op een centrale locatie met winkels, horeca en openbaar vervoer op loopafstand
Beschikbaar per 1 mei
Huurprijs: € 2.000,- per maand / excl  € 50,- servicekosten per maand
1 maand waarborgsom
Voorwaarden
NIET geschikt voor studenten
GEEN kamerbewoning toegestaan
Geschikt voor een stel of gezin

Kenmerken