Beschrijving
AKERKHOF 43-5, GRONINGEN – LUXE GERENOVEERD APPARTEMENT MET UITZICHT OP DE AKERK
Geen delers! Geen studenten / geen garantstelling / minimum inkomen 3x de huur.
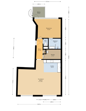
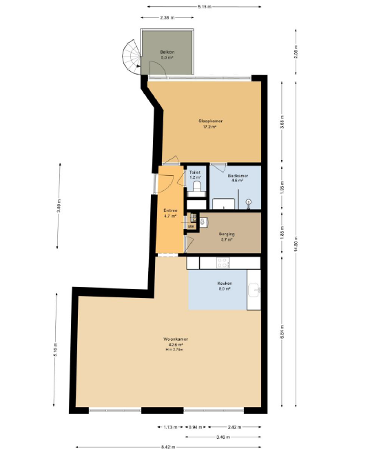
Wonen op een van de mooiste locaties in het historische centrum van Groningen? Dit hoogwaardig en recent volledig gerenoveerde appartement van 87,6 m² biedt een unieke combinatie van luxe, comfort en een uitzonderlijke ligging aan het karakteristieke Akerkhof, met prachtig uitzicht op de iconische Akerk.
Het appartement is recent met oog voor detail en hoogwaardige materialen gerenoveerd en verkeert in instapklare staat. De royale woonkamer vormt het hart van de woning en kenmerkt zich door hoge plafonds, grote raampartijen en een schitterend uitzicht over het Akerkhof en de Akerk, wat zorgt voor een bijzonder ruimtelijk en licht gevoel.
De moderne, luxe keuken is volledig nieuw en voorzien van diverse hoogwaardige inbouwapparatuur, waaronder een inductiekookplaat, koel-vriescombinatie, vaatwasser en een combi oven-magnetron. De keuken sluit perfect aan op de leefruimte en maakt het appartement ideaal voor zowel comfortabel wonen als ontvangen van gasten.
Aan de rustige achterzijde van het appartement bevindt zich de ruime slaapkamer, voorzien van een grote raampartij en directe toegang tot een balkon van circa 5 m². Vanuit de slaapkamer bereikt u de gloednieuwe ensuite badkamer, stijlvol afgewerkt met een design wastafel en een ruime inloopdouche.
Daarnaast beschikt het appartement over een praktische inpandige berging met een nieuwe HR107 CV-ketel en aansluitingen voor zowel een wasmachine als droger.
Door het gehele appartement ligt een nieuwe hoogwaardige PVC-vloer, wat zorgt voor een moderne en rustige uitstraling.
Het gebouw beschikt bovendien over een lift, wat het wooncomfort verder vergroot.
Beschikbaar
Het appartement is beschikbaar per 1 april 2026.
Huurprijs: € 1950,- per maand / € 70,- servicekosten
Locatie
De ligging is zonder overdrijven uitstekend te noemen. Het appartement bevindt zich midden in het bruisende en historische centrum van Groningen. Op loopafstand bevinden zich de Grote Markt, een breed aanbod aan winkels, restaurants, cafés, culturele voorzieningen en openbaar vervoer. Tegelijkertijd biedt het Akerkhof een sfeervolle en karakteristieke woonomgeving.
Dankzij de volledige renovatie en hoogwaardige afwerking is het appartement direct instapklaar. Appartementen van dit niveau op deze locatie komen zelden beschikbaar in het centrum van Groningen.
De woning is zeer geschikt voor expats en werkenden en niet geschikt voor studenten.
Bent u op zoek naar een luxe appartement op een unieke centrumlocatie? Neem dan contact op voor het plannen van een bezichtiging.
Kenmerken
Woonoppervlakte ca. 87,6 m²
Recent hoogwaardig gerenoveerd
Energielabel A
Luxe nieuwe keuken met inbouwapparatuur
Nieuwe PVC-vloer door het gehele appartement
Zeer ruime en lichte woonkamer met uitzicht op de Akerk
1 ruime slaapkamer
Nieuwe ensuite badkamer met inloopdouche
Balkon ca. 5 m² aan de achterzijde
Inpandige berging met CV en wasmachine-/drogeraansluiting
Lift aanwezig in het gebouw
Gelegen op een toplocatie in het centrum van Groningen
Beschikbaar per 1 april 2026
Bouwjaar 1915
Bewoners kunnen een parkeervergunning aanvragen via de gemeente Groningen (indien beschikbaar).